English Deutsch Français Español עברית العربية 中国
Login
Eladó villa

Villa for sale

In the peaceful embrace of Hűvösvölgy

Technical characteristics, history of construction and renovations.

  1. The villa, with the nationalized apartments inside, was sold (privatization – for the residents) due to its completely neglected condition by the end of the 1980s, and was converted into a six-unit apartment building, which unfortunately did not change the condition of the villa, there was no financing or demand for it (Sándor Érdi made a film about it). The Fence, a smaller building located on a land area of nearly 2000 m2, lay in ruins for years.
  2. Finally, within 20 years, it came into the ownership of a family and then the renovation began, which lasted five years between 2000 and 2005, funded by the owners' money and loans.
  3. At the villa its exterior plaster has been stripped down to brick, and was renovated with the Knauf ventilated plaster system used for historic buildings .
  4. Regarding the interior of the huge building, the basement also underwent a complete plaster replacement. The rooms previously used for storing coal and older objects were cleaned and returned to their original condition. A laundry room, dryer, sauna, wine storage, DIY, sports and storage rooms were created. The basement apartment remained, of course. Furthermore, the roof was completely replaced, which increased the usable area of the second-floor apartment for its residents several times.
  5. The internal upgrades All the wires were affected at that time: the electrical network, the water and sewage systems were completely replaced (all the way to the main line of Hűvösvölgyi Street, dug to a depth of several meters). A cable system was created that also made office operations possible.
  6. The heating systems were designed in parallel, switching to gas boilers on all four floors. All floor coverings (approx. 700 m2) were replaced: insulation, parquet, stone floors, etc.
  7. All the original windows, which were otherwise made of larch, were renovated in their original splendor, and a total of four layers of glass were added to the double-leaf windows, including in the staircase. This made the sound and heat insulation excellent.
  8. This was complemented by the construction of a fence wall of approximately 2.5 meters in places, 60 cm thick, decorated with oak elements, and the creation of an electric gate system, which strengthened the protection against noise and comfortable traffic.
  9. The parking lot, the sidewalk system surrounding the villa, and the garden were constructed on several hundred square meters, mainly with andesite stone. Finally, the covered and walled car parking spaces (about 6-7 comfortably) were completed on the now horizontal terrain. In total, 15-18 cars can fit in this 2-300 m2 area. (Obviously this is an extra case). Of course, the villa's staircase, also made of larch, also shone in its original splendor.
  10. A smaller building was built next to the original 1909 bourgeois Art Nouveau villa (not unique in the area). We transformed it from its ruins into a three-room, two-story, essentially self-contained house.
  1. In addition to the architects' work, the renovation of the completely neglected garden and the development of the vegetation concept have begun. We have planted many new trees, which are now slowly catching up in size with the 100-year-old trees in some places (they are 4-6 stories high), thus ensuring the complete isolation and intimacy of the villa.
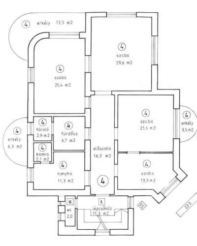
  2. The villa contains 6 apartments, but it was designed for a comfortable living space for one owner. The neighbors are far away, and the transportation is great, as it was built at an altitude of 100 m, so you don't have to worry about precipitation.